Address: 235 24th Avenue Se, ST PETERSBURG, FL 33705
Description
Under Construction. Est. Completion: November 2025. Don't miss this exceptional opportunity with Canopy Builders St. Petersburg's most TRUSTED name in luxury home construction. The Folk Vernacular represents timeless design and elevated living on a premium oversized cul de sac lot in the highly sought after Old Southeast neighborhood.
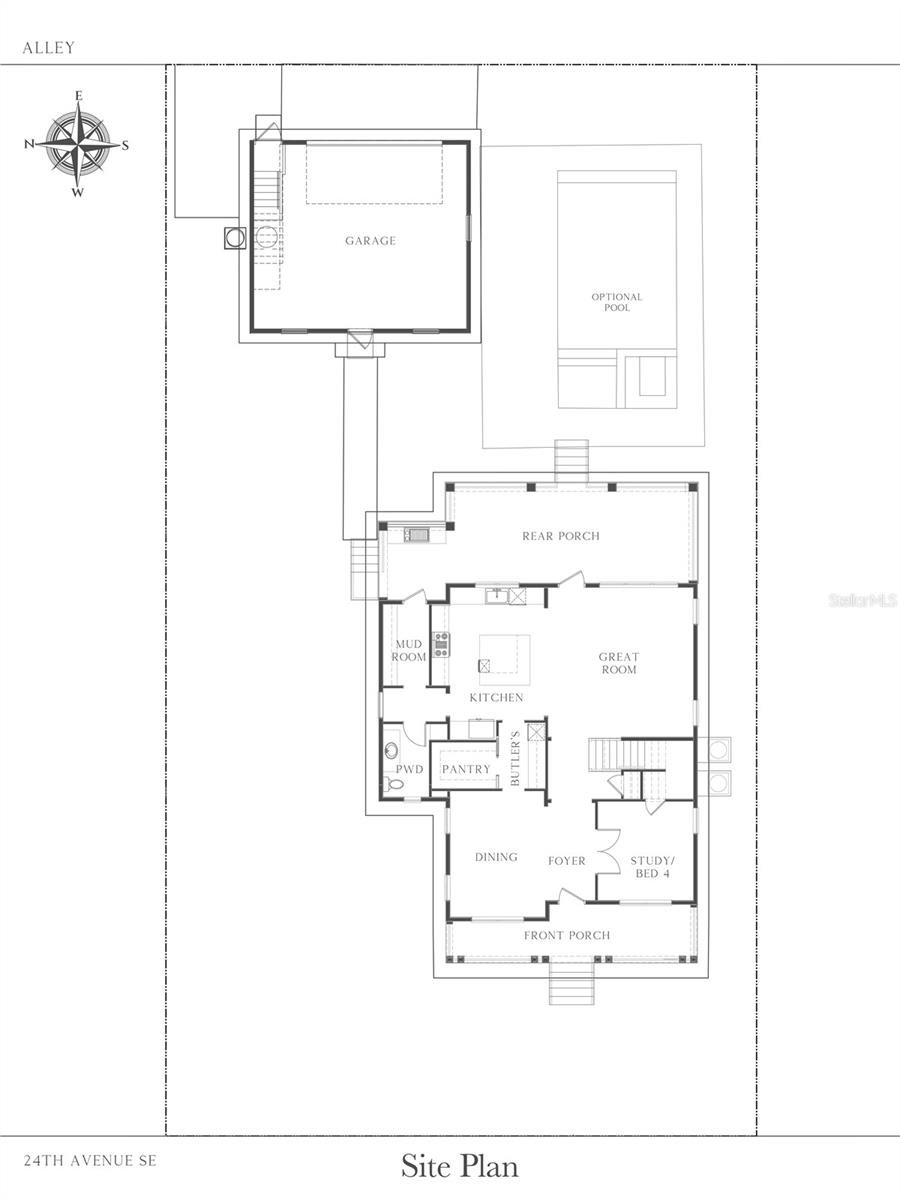
This meticulously planned residence offers 5 bedrooms and 3.5 bathrooms across 3,460 sq ft of thoughtfully designed living space, plus a fully equipped Accessory Dwelling Unit above the detached two car garageperfect for guests, home office, or additional rental income.
A charming front porch with gas sconce lighting welcomes you into a light filled foyer showcasing the home's open concept design and elegant architectural details. The gourmet kitchen stands as the heart of the home, featuring a professional gas range, custom wood range hood, GE Caf stainless steel appliances, solid Maple shaker cabinetry with soft close drawers and 42" uppers, upgraded quartz countertops, distinctive Kohler farmhouse sink, and stylish brass fixtures throughout. The adjacent butler's pantry includes wine refrigeration and connects seamlessly to the formal dining room for effortless entertaining.
The intelligently designed main floor includes a practical mudroom entry, powder room with floating vanity, convenient laundry room, and pool bath with exterior access. Living spaces flow naturally to the expansive covered patio featuring a built in outdoor kitchen, overlooking the generous side yard with ample room for a future pool.
Retreat upstairs to discover the luxurious primary suite offering dual walk in closets and a spa inspired bathroom with marble tile finishes, dual vanities, frameless glass shower, and freestanding soaking tub. Three additional bedrooms and a versatile loft space complete the second floor, providing abundant room for family, guests, or home offices.
Every detail reflects Canopy's commitment to excellence: engineered hardwood flooring, impact resistant windows, Hardie Board exterior siding, Sherwin Williams paint, Owens Corning 30 year architectural shingles, Emtek entry hardware, tankless gas water heater, 16 SEER HVAC system with dual zone thermostats, 10' ceilings, 8' interior doors, and open cell spray foam attic insulation ensuring year round comfort and efficiency.
Experience Canopy's signature Design Review Meeting at their St. Pete office to personally touch and feel the curated finish selections. Backed by Canopy's comprehensive warranty program with a dedicated specialist for your entire first yearunmatched peace of mind.
Located steps from Lassing Park, 5 minutes to vibrant Downtown St. Pete, 15 minutes to pristine St. Pete Beach, and 20 minutes to Tampathe perfect blend of historic charm and modern convenience.
This extraordinary home is nearing completionschedule your private tour today to experience the exceptional layout, finishes, and craftsmanship firsthand. Your dream home awaits.
Under Construction. Est. Completion: November 2025. Don't miss this exceptional opportunity with Canopy Builders St. Petersburg's most TRUSTED name in luxury home construction. The Folk Vernacular represents timeless design and elevated living on a premium oversized cul de sac lot in the highly sought after Old Southeast neighborhood.
This meticulously planned residence offers 5 bedrooms and 3.5 bathrooms across 3,460 sq ft of thoughtfully designed living space, plus a fully equipped Accessory Dwelling Unit above the detached two car garageperfect for guests, home office, or additional rental income.
A charming front porch with gas sconce lighting welcomes you into a light filled foyer showcasing the home's open concept design and elegant architectural details. The gourmet kitchen stands as the heart of the home, featuring a professional gas range, custom wood range hood, GE Caf stainless steel appliances, solid Maple shaker cabinetry with soft close drawers and 42" uppers, upgraded quartz countertops, distinctive Kohler farmhouse sink, and stylish brass fixtures throughout. The adjacent butler's pantry includes wine refrigeration and connects seamlessly to the formal dining room for effortless entertaining.
The intelligently designed main floor includes a practical mudroom entry, powder room with floating vanity, convenient laundry room, and pool bath with exterior access. Living spaces flow naturally to the expansive covered patio featuring a built in outdoor kitchen, overlooking the generous side yard with ample room for a future pool.
Retreat upstairs to discover the luxurious primary suite offering dual walk in closets and a spa inspired bathroom with marble tile finishes, dual vanities, frameless glass shower, and freestanding soaking tub. Three additional bedrooms and a versatile loft space complete the second floor, providing abundant room for family, guests, or home offices.
Every detail reflects Canopy's commitment to excellence: engineered hardwood flooring, impact resistant windows, Hardie Board exterior siding, Sherwin Williams paint, Owens Corning 30 year architectural shingles, Emtek entry hardware, tankless gas water heater, 16 SEER HVAC system with dual zone thermostats, 10' ceilings, 8' interior doors, and open cell spray foam attic insulation ensuring year round comfort and efficiency.
Experience Canopy's signature Design Review Meeting at their St. Pete office to personally touch and feel the curated finish selections. Backed by Canopy's comprehensive warranty program with a dedicated specialist for your entire first yearunmatched peace of mind.
Located steps from Lassing Park, 5 minutes to vibrant Downtown St. Pete, 15 minutes to pristine St. Pete Beach, and 20 minutes to Tampathe perfect blend of historic charm and modern convenience.
This extraordinary home is nearing completionschedule your private tour today to experience the exceptional layout, finishes, and craftsmanship firsthand. Your dream home awaits.
Features
Building and Construction
Builder Model: FOLK VERNACULAR
Builder Name: CANOPY BUILDERS LLC
Covered Spaces: 0.00
Exterior Features: Outdoor Kitchen, Rain Gutters
Flooring: Wood
Living Area: 3460.00
Other Structures: Guest House, Outdoor Kitchen
Roof: Shingle
Property Information
Property Condition: Under Construction
Land Information
Lot Features: FloodZone, City Limits, Oversized Lot, Street Dead-End, Paved
School Information
High School: St. Petersburg High-PN
Middle School: John Hopkins Middle-PN
School Elementary: Bay Vista Fundamental-PN
Garage and Parking
Garage Spaces: 2.00
Open Parking Spaces: 0.00
Parking Features: Garage Door Opener
Eco-Communities
Water Source: Public
Utilities
Carport Spaces: 0.00
Cooling: Central Air, Zoned
Heating: Central, Electric, Zoned
Sewer: Public Sewer
Utilities: Electricity Connected, Public, Sewer Connected, Water Connected
Finance and Tax Information
Home Owners Association Fee: 0.00
Insurance Expense: 0.00
Net Operating Income: 0.00
Other Expense: 0.00
Tax Year: 2024
Other Features
Appliances: Bar Fridge, Disposal, Microwave, Range, Range Hood, Refrigerator, Tankless Water Heater
New Listings & Price Reduction Updates sent directly to your email
Create Your Own Property Search saved for your return visit.
"Like" Listings and Create a Favorites List
* NOTICE: By creating your free profile, you authorize us to send you periodic emails about new listings that match your saved searches and related real estate information.If you provide your telephone number, you are giving us permission to call you in response to this request, even if this phone number is in the State and/or National Do Not Call Registry.